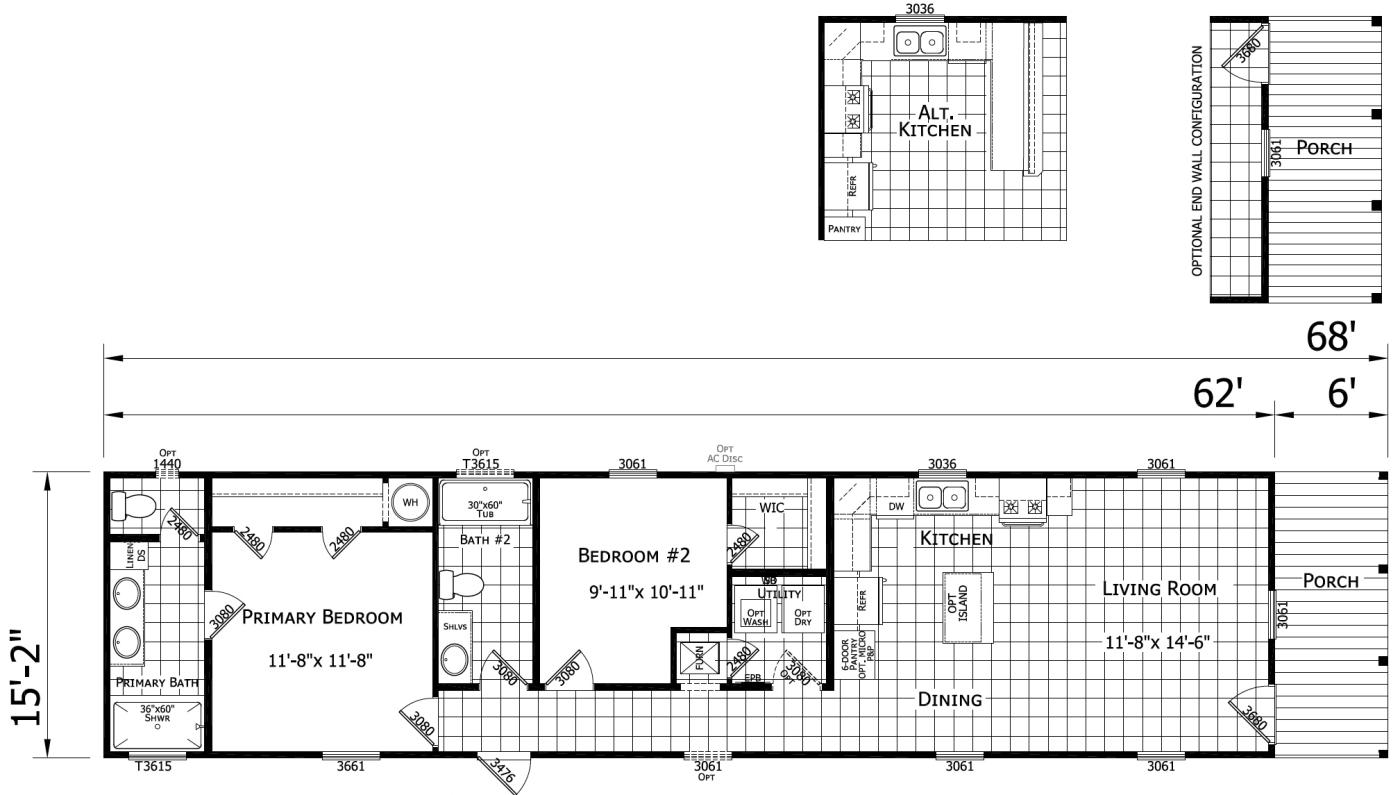
Download Floorplan PDF Download Download Floorplan SQ FT 940 Bedrooms 2 Bathrooms 2 Request Info And Pricing