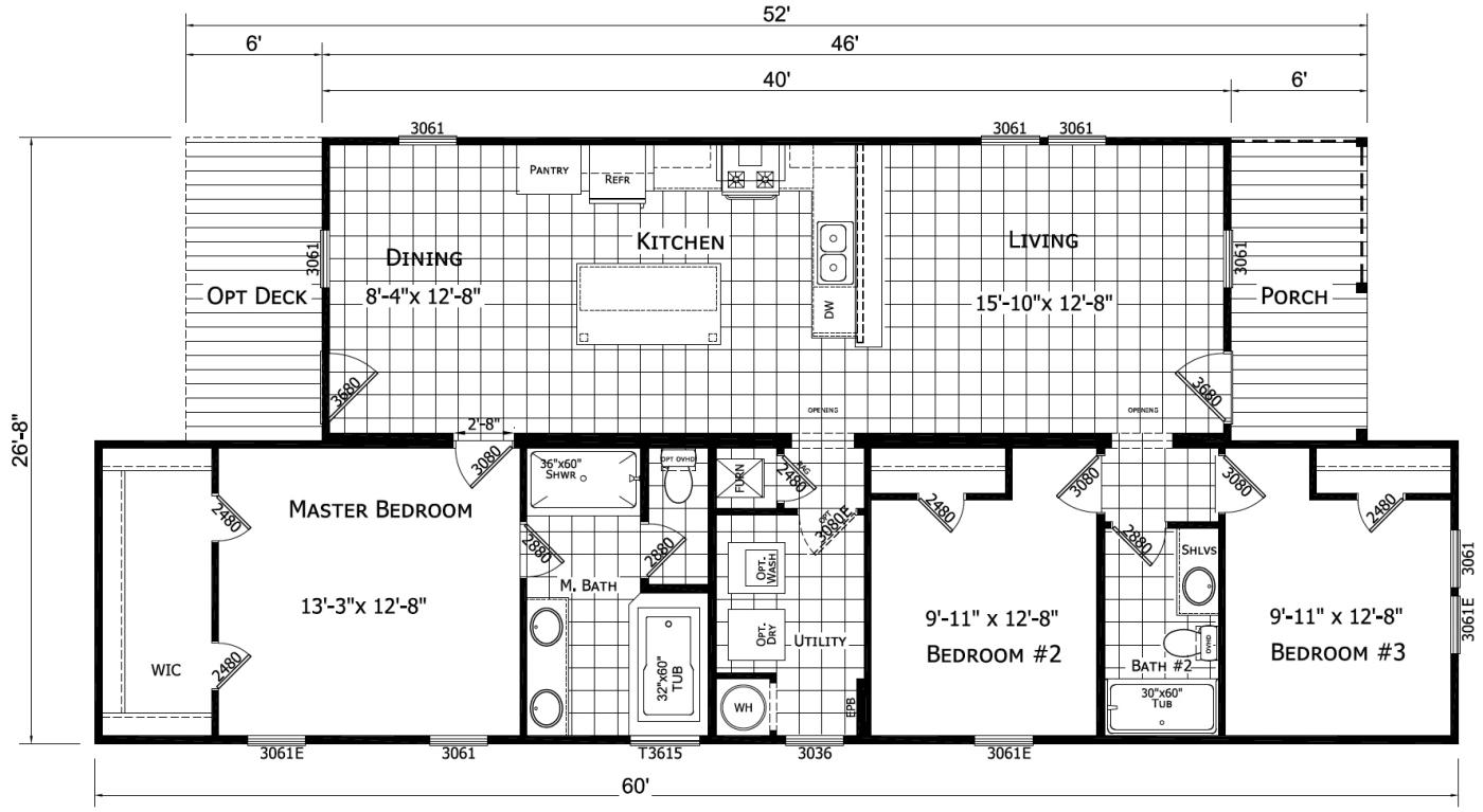
The Daisey