- Built-on Porch
- End Entry For Garage
- Exceptional, Distinctive Builds (Ultra Series)
- Great Room
- Guest Closet by Front Door
- Hi-Bar Separating Kitchen from Living Areas
- Kitchen Separated from Living Areas
- Kitchen Sink looking out Window
- Outside Entry directly to a Bathroom
- Patio Door or Swing Patio Door on Rear of Home
- Two Sinks in Master Bath
- Ultimate Laundry Room with Wrap Around Cabinets & Sink
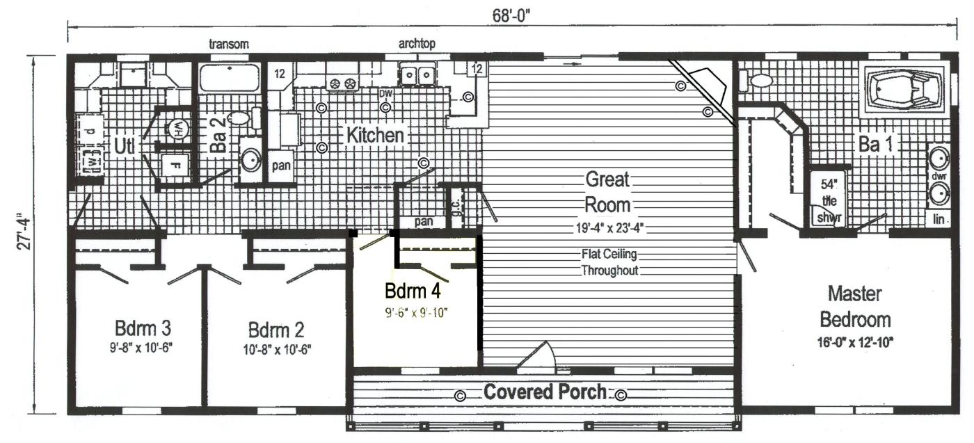
SQ FT
1771
Bedrooms
4
Bathrooms
2
