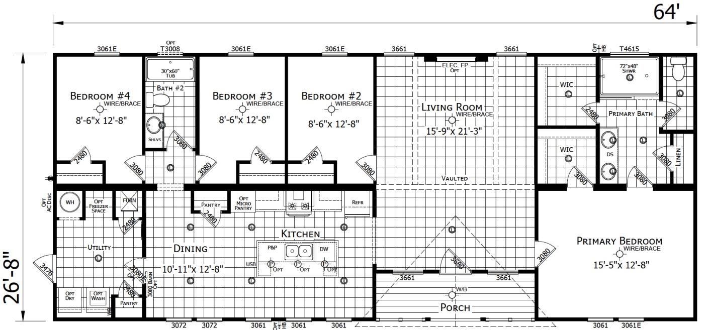
Download Floorplan PDF Download Download Floorplan SQ FT 1632 Bedrooms 4 Bathrooms 2 Request Info And Pricing