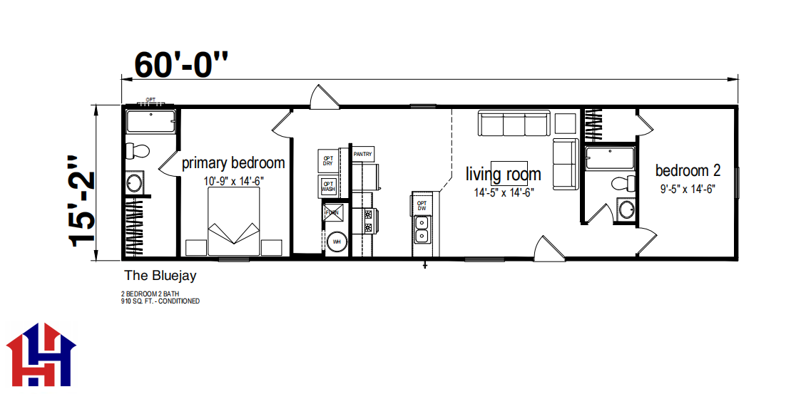
The Bluejay

Please try reloading the page if you are not able to view

Download Floorplan

The Bluejay is a 2 bedroom 2 bath home.

Lots of space to offer.

This home offers 910 sf of total living area.

 

Main Image
Image
The Bluejay
Bedrooms
2
Bathrooms
2
Condition
Display
Width
16ft
Length
60ft
Family Room / Living Room
Living Room